STOF Logo Crop
LG, KES 2024
LG, KES 2024

KES 2024에서 LG전자는 ‘Affectionate Intelligence’를 기술 전시가 아닌, 몰입형 공간 내러티브로 제시했다. ‘LG Theater’를 중심으로 구성된 이 파빌리온은 방문객을 감정의 흐름에 따라 이끄는 경험 구조를 통해, AI 기술을 직관적이고 감각적인 상호작용으로 전달하며, 기술을 ‘설명’이 아닌 ‘경험’으로 재구성했다.

At KES 2024, LG Electronics presented “Affectionate Intelligence” as an immersive spatial narrative. Structured around the “LG Theater,” the pavilion guided visitors through a sequence of emotional experiences, translating AI technologies into intuitive, sensory interactions—framing technology not as display, but as experience.

LG, KES 2024
LG, KES 2024
LG, KES 2024
LG, KES 2024
1  of  4

서울 코엑스에서 열린 KES 2024에서 LG전자는 ‘공감지능(Affectionate Intelligence)’이라는 브랜드 비전을 공간으로 풀어냈다. 이번 전시는 단순히 신기술을 나열하거나 제품을 전시하는 자리가 아니라, 기술이 어떻게 사용자의 감정을 이해하고 일상에 스며드는지를 체험적으로 전달하는 무대로 기획되었다.
LG의 브랜드 철학 ‘Life’s Good’은 기능적 우수성을 넘어 삶의 질을 향상시키는 기술을 지향한다. 우리는 이 메시지를 설명하는 대신, 감정의 구조로 재해석했다. 기술은 더 이상 사양과 수치로 전달되는 정보가 아니라, 사용자와 관계를 맺는 존재라는 전제에서 출발했다.
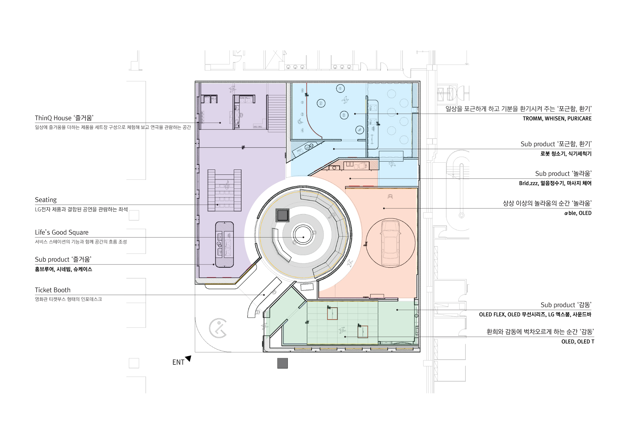
전시의 중심 개념은 ‘LG Theater’이다. 극장은 감정이 오가는 장소다. 배우와 관객이 직접 교감하고, 장면의 전환과 빛, 소리, 공간의 깊이가 서사를 완성한다. LG의 AI 또한 사용자의 생활 패턴과 감정 데이터를 읽고 반응하며 하나의 장면을 만들어낸다는 점에서, 전시관은 하나의 극적 구조를 가진 무대로 설정되었다.

At KES 2024 in Seoul, LG Electronics presented its vision of “Affectionate Intelligence” not as a technological showcase, but as a spatial narrative. The pavilion was conceived as an immersive environment where visitors could experience how AI understands human emotion and integrates seamlessly into everyday life.
LG’s brand philosophy, “Life’s Good,” aspires to enhance quality of life beyond functional excellence. Rather than explaining this message through specifications or performance metrics, the project reinterpreted it through emotional structure. Technology was positioned not as an object to be displayed, but as an active presence that forms relationships with users.
The central concept of the pavilion was the “LG Theater.” A theater is a space where emotions unfold—where actors and audience engage directly, and where light, sound, movement, and transitions construct a narrative. Similarly, LG’s AI technologies respond to users’ behaviors and patterns, shaping moments of daily life. The pavilion therefore adopted a theatrical framework, transforming the exhibition into a staged experience.

LG, KES 2024
LG, KES 2024
LG, KES 2024
1  of  3
LG, KES 2024

첫 장면인 OLED 존은 압도적인 화질과 사운드를 통해 ‘감동’의 순간을 연출한다. 빛은 공간을 장악하고, 사운드는 감각을 확장한다. 이는 기술의 성능을 설명하는 대신, 몰입을 통해 직관적으로 체험하게 한다.

The OLED zone delivered an overwhelming moment of immersion. Through image and sound, it evoked a sense of awe and emotional intensity. Instead of explaining technological superiority, the space allowed visitors to feel it intuitively.

LG, KES 2024
LG, KES 2024
LG, KES 2024
1  of  3

αble 존은 ‘변화와 탐험’의 감정을 다룬다. AI 프로세서를 기반으로 한 미래 지향적 기능들은 상상 이상의 놀라움을 제안하며, 기술이 단순한 도구를 넘어 라이프스타일을 재정의할 수 있음을 보여준다. 이어지는 가전 존에서는 세탁, 공기, 케어 기술을 통해 ‘포근함’과 ‘환기’라는 감정을 공간적으로 구현했다. 세탁기의 6모션, AI 스마트 케어, 공기 관리 시스템 등은 일상 속 작은 불편을 해결하는 기능을 넘어 사용자의 기분을 조율하는 요소로 해석되었다.

The αble zone introduced themes of transformation and exploration. Powered by AI processors, future-oriented features suggested new lifestyle possibilities, presenting technology as a catalyst for imagination and discovery.
In the home appliance zones, washing, air care, and smart management technologies were interpreted through emotional states of comfort and renewal. Features such as 6-motion washing systems and AI smart care were translated into spatial experiences that subtly reflected how technology can regulate mood and well-being in everyday contexts.

LG, KES 2024
LG, KES 2024
LG, KES 2024
LG, KES 2024
LG, KES 2024
LG, KES 2024
LG, KES 2024
LG, KES 2024
LG, KES 2024
LG, KES 2024
1 / 5

ThinQ House는 연결된 생활의 장면을 제시한다. 제품들은 개별 오브제가 아니라 하나의 시스템으로 작동하며, 집이라는 공간 안에서 기술이 어떻게 조용히, 그러나 적극적으로 삶을 지원하는지 보여준다. 이곳에서 기술은 눈에 띄기보다 배경이 되어, 일상의 흐름을 자연스럽게 완성한다.

The ThinQ House extended this narrative into a connected domestic scenario. Products operated not as isolated devices but as components of an integrated ecosystem. Technology receded into the background, quietly supporting daily rhythms while remaining deeply responsive.

LG, KES 2024
LG, KES 2024
LG, KES 2024
1  of  3

공간의 중심에는 원형 순환 구조가 배치되었다. 이는 극장의 무대를 연상시키는 동시에, 감정의 순환과 연결을 상징한다. 각 존은 독립적인 장면처럼 구성되지만, 동선을 따라 이동하며 하나의 연속된 경험으로 이어진다.

A circular core structure anchored the pavilion, evoking the geometry of a theater stage. This central form symbolized continuity and emotional flow. Each zone functioned as an independent scene, yet together they composed a cohesive experiential storyline.

LG, KES 2024
LG, KES 2024
LG, KES 2024
LG, KES 2024
LG, KES 2024
LG, KES 2024
LG, KES 2024
1 / 3

이 전시는 기술을 보여주는 공간이 아니라, 기술이 삶과 감정에 어떻게 작동하는지를 ‘연출’한 공간이다. LG가 말하는 공감지능은 데이터를 학습하는 AI를 넘어, 사용자의 감정과 상황을 이해하고 반응하는 존재다. 우리는 이를 공간 언어로 번역해, 관람객이 스스로 느끼고 체험하도록 구성했다.
KES 2024 LG 전시관은 IT 전시의 기계적이고 차가운 분위기에서 벗어나, 기술과 감정이 교차하는 새로운 전시 방식을 제안한다. 이곳에서 기술은 설명되지 않는다. 대신 경험된다. 그리고 그 경험은 자연스럽게 하나의 메시지로 수렴한다.

The pavilion did not aim to display AI. It aimed to stage it. LG’s concept of Affectionate Intelligence—technology that understands and empathizes—was translated into spatial language, allowing visitors to encounter it directly through movement, atmosphere, and interaction.
Departing from the mechanical and often sterile atmosphere typical of IT exhibitions, the KES 2024 LG Pavilion proposed a new typology: an exhibition where technology and emotion intersect. Technology was not explained. It was experienced. And through that experience, the message became clear: